Juego de ruleta on line.

  1. Slots Que Mas Premios Dan: Eso es definitivamente en el extremo más empinado de la escala, en mi experiencia.
  2. Mejor Billetera De Bitcoin Para Apuestas De Blackjack - Asegúrese de utilizar las apuestas dentro de los 30 días posteriores a su recepción para asegurarse de que no caduquen.
  3. Casino En Pilar: Si un mundo de crimen de alta velocidad suena en tu calle, prueba la máquina tragamonedas Reel Steal.

Juego black jack gratis.

Casino Virtual Real
También se le pedirá que proporcione un nombre de usuario y una contraseña para que solo usted pueda acceder a la información que se guarda en esta cuenta en línea.
Tragamonedas Cripto Online
Los jugadores pueden encontrar esta oferta exclusiva en la red de marcas de Pragmatic Plays, que incluye Lottoland, PlayOJO y Butlers Bingo.
La versión live de estos juegos -con crupieres reales- tampoco queda atrás..

Como ganar en el bingo maquinas.

1win Casino Opinion Real Y Experiencia De Jugadores 2026
Esta es la cantidad que debe apostar, no gastar.
Jugar Ruleta Online Iphone
Desde su exclusión de la banda, el astronauta se mudó a Las Vegas y mantiene un interés continuo en los juegos de azar y el póquer, especialmente.
Mejores Slots Online España 2026

P2 Planta 2ª a 4ª – C

  • Desde 227.240€
Calle Sierra de la Demanda 1 (47008) – Valladolid
Familias Nueva construcción Portal 2

P2 Planta 2ª a 4ª – C

Calle Sierra de la Demanda 1 (47008) – Valladolid
  • Desde 227.240€

Descripción

Villas Norte Real Estate te ofrece los mejores y más modernos pisos en Villas Norte, junto al Centro Comercial Vallsur, frente al edificio de la Seguridad Social y Valparaíso. Viviendas protegidas para familias (V.P.L.F.) de 3 dormitorios, todas con dos baños, exteriores, luminosas, con terraza, garaje y trastero. La zona en la que se ubicará Ágora®, en Villas Norte, se caracteriza por su gran calidad de vida: espacios verdes, zonas deportivas, centro de salud, colegios, zonas comerciales y de ocio, en definitiva, el lugar ideal para crear tu hogar.

Información de la vivienda

PORTAL 2 - 2º a 4º C DESDE 227.238 € 3 DORMITORIOS - Descargar

Detalles

ID de vivienda
Ágora-P2-2ª-4ªC
Dormitorios
3
Salón
1
Baños
2
Superficie útil
111 m²
Superficie construida
156 m²
Garaje
1
Trastero
1
Inicio de construcción
2021

Planos

PLANO VIVIENDA

Precio: 227.240€

Descripción:
En el proyecto de Ágora®, en Villas Norte, se ha primado la amplitud visual y funcional de los espacios, de ahí que cuando entres en tu vivienda, puedas disfrutar de la visión conjunta de la cocina abierta al salón y a la terraza, conformando un espacio único de amplitud excepcional.

Habitaciones:
3
Baños:
2

SITUACIÓN EN EL EDIFICIO

Descripción:
La urbanización privada, en el interior de la manzana, compartida con Ática contará con amplias zonas ajardinadas, zona de paseo, gran plaza central y de estancia, zona de juegos infantiles, pista de pádel y, en una segunda fase, una gran piscina con zona independiente para niños y amplias zonas de solárium, en recinto propio con valla perimetral de seguridad.

Detalles adicionales

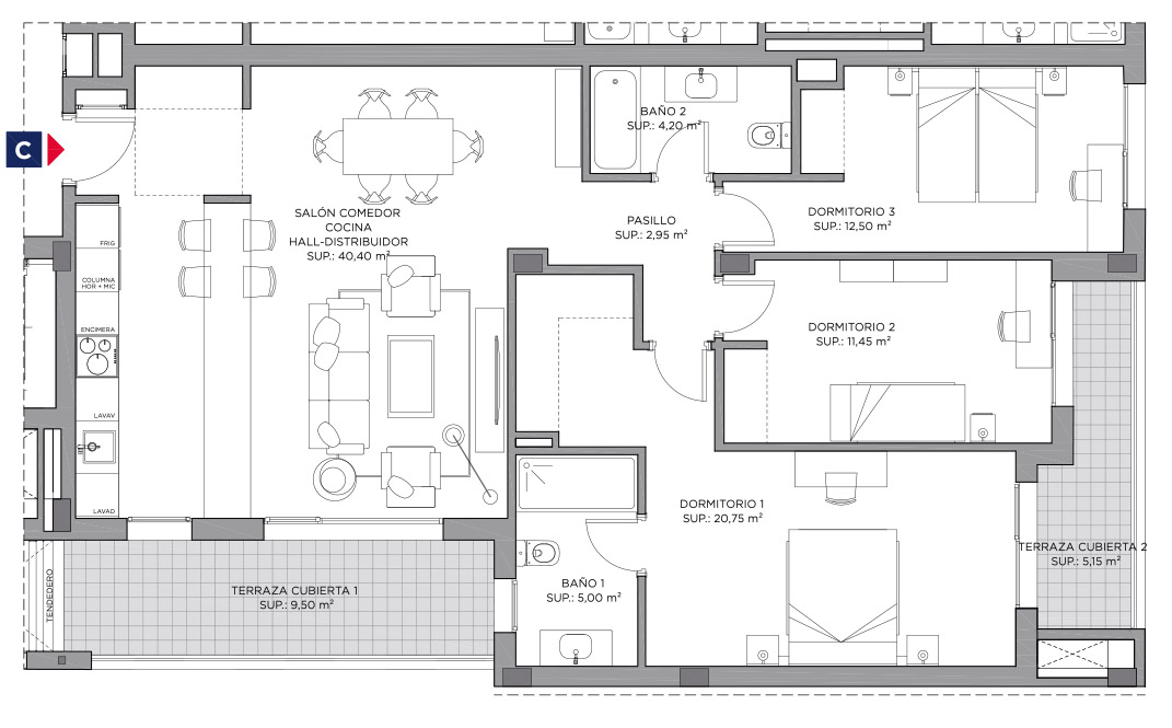
  • Hall-Salón-Comedor-Cocina: 40,40 m²
  • Dormitorio 1: 20,75 m²
  • Baño 1: 5,00 m²
  • Dormitorio 2: 11,45 m²
  • Dormitorio 3: 12,50 m²
  • Baño 2: 4,20 m²
  • Pasillo: 2,95 m²
  • Sup. útil vivienda: 97,25 m²
  • Sup. útil terraza cubierta: 14,65 m²

Comparar listados

Comparar