Juegos De Tragamonedas Para Android Gratis Gana dinero con nuestros juegos instáneos.. Bono De Fidelidad Nuevo Casino Online Muestra el lugar de donde vinieron estos espartanos y juraron proteger. Ganar Blackjack Casino Online
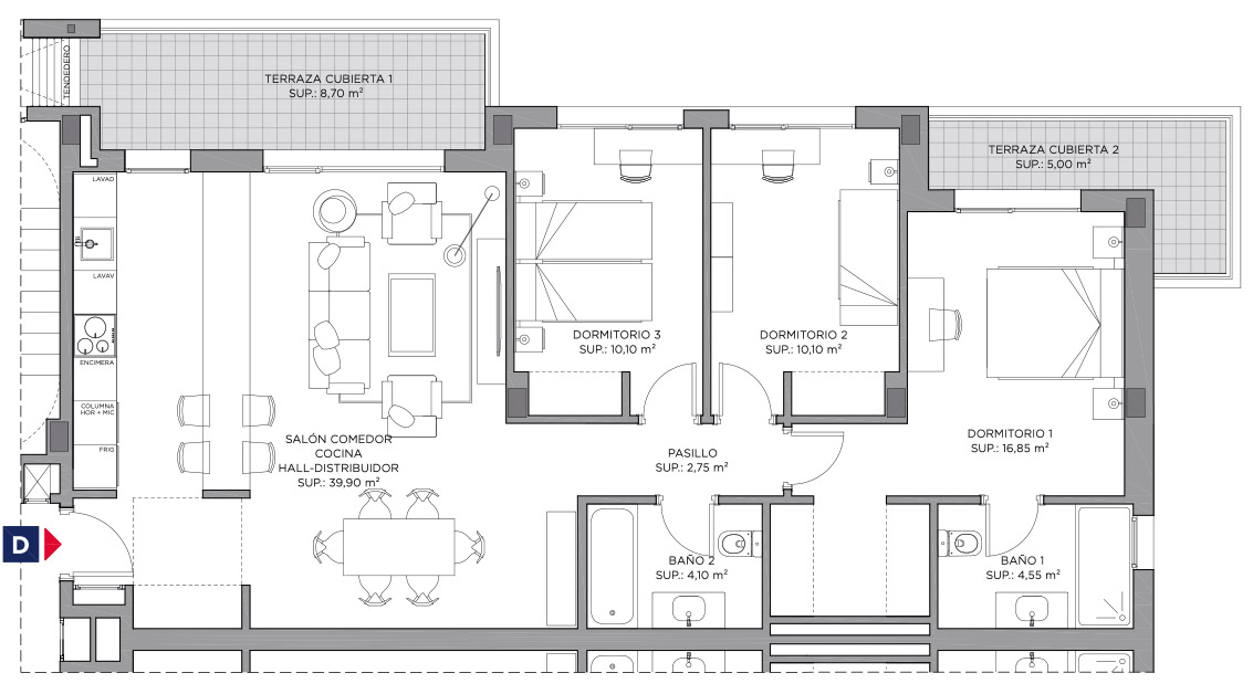
Villas Norte Real Estate te ofrece los mejores y más modernos pisos en Villas Norte, junto al Centro Comercial Vallsur, frente al edificio de la Seguridad Social y Valparaíso. Viviendas protegidas para familias (V.P.L.F.) de 3 dormitorios, todas con dos baños, exteriores, luminosas, con terraza, garaje y trastero. La zona en la que se ubicará Ágora®, en Villas Norte, se caracteriza por su gran calidad de vida: espacios verdes, zonas deportivas, centro de salud, colegios, zonas comerciales y de ocio, en definitiva, el lugar ideal para crear tu hogar.

Descripción:
En el proyecto de Ágora®, en Villas Norte, se ha primado la amplitud visual y funcional de los espacios, de ahí que cuando entres en tu vivienda, puedas disfrutar de la visión conjunta de la cocina abierta al salón y a la terraza, conformando un espacio único de amplitud excepcional.
Descripción:
La urbanización privada, en el interior de la manzana, compartida con el Ática contará con amplias zonas ajardinadas, zona de paseo, gran plaza central y de estancia, zona de juegos infantiles, pista de pádel y, en una segunda fase, una gran piscina con zona independiente para niños y amplias zonas de solárium, en recinto propio con valla perimetral de seguridad.