Diferencia Ruleta Y Blackjack Para cualquier jugador principiante, tratar de aprender cualquiera de los juegos de casino puede parecer una tarea difícil, por lo que es posible que necesite ayuda. Donde Jugar Baccarat Con Paysafecard En cuanto al límite máximo de retiros, varía entre las diferentes soluciones de pago. Ruleta Francesa Casino
Villas Norte Real Estate te ofrece los mejores y más modernos pisos en Villas Norte, junto al Centro Comercial Vallsur, frente al edificio de la Seguridad Social y Valparaíso. Exclusivas viviendas protegidas para jóvenes (V.J.) de 2 dormitorios todas con dos baños, exteriores, luminosas, con terraza, garaje y trastero. La zona en la que se ubicará Ágora®, en Villas Norte, se caracteriza por su gran calidad de vida: espacios verdes, zonas deportivas, centro de salud, colegios, zonas comerciales y de ocio, en definitiva, el lugar ideal para crear tu hogar.

Descripción:
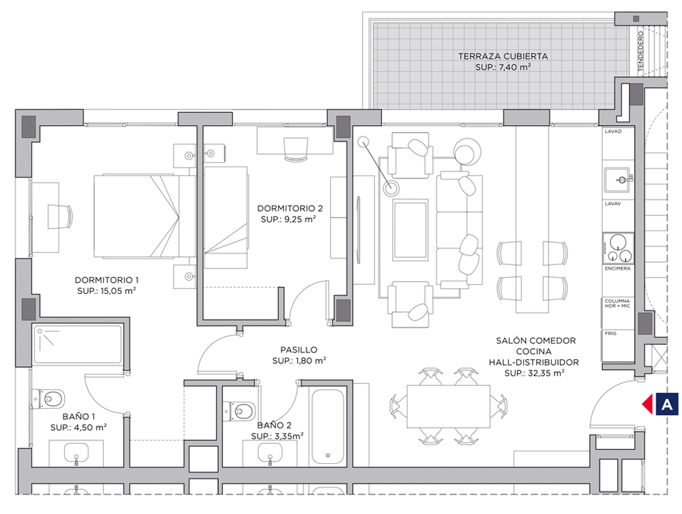
En el proyecto de Ágora® Villas Norte, se ha primado la amplitud visual y funcional de los espacios, de ahí que cuando entres en tu vivienda, puedas disfrutar de la visión conjunta de la cocina abierta al salón y a la terraza, conformando un espacio único de amplitud excepcional.
Descripción:
La urbanización privada, en el interior de la manzana, compartida con el Edificio Ática contará con amplias zonas ajardinadas, zona de paseo, gran plaza central y de estancia, zona de juegos infantiles, pista de pádel y, en una segunda fase, una gran piscina con zona independiente para niños y amplias zonas de solárium, en recinto propio con valla perimetral de seguridad.