Tragamonedas De Musica Online HSBC, Barclays, Lloyds TSB, Halifax-Bank of Scotland, RBS-Natwest, Nationwide, Abbey, First Direct, Alliance & Leicester y Yorkshire-Clydesdale. Mega Ball Con Mastercard Realtime Gaming ofrece una amplia variedad de tragamonedas, mientras que Visionary iGaming es el proveedor de crupieres en vivo preferido. Juegos De Casinos Como Jugar
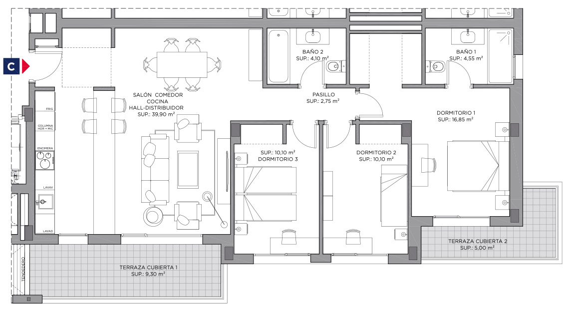
Villas Norte Real Estate te ofrece los mejores y más modernos pisos en Villas Norte, junto al Centro Comercial Vallsur, frente al edificio de la Seguridad Social y Valparaíso. Viviendas protegidas para familias (V.P.L.F.) de 3 dormitorios, todas con dos baños, exteriores, luminosas, con terraza, garaje y trastero. La zona en la que se ubicará Ágora®, en Villas Norte, se caracteriza por su gran calidad de vida: espacios verdes, zonas deportivas, centro de salud, colegios, zonas comerciales y de ocio, en definitiva, el lugar ideal para crear tu hogar.

Descripción:
En el proyecto de Ágora®, en Villas Norte, se ha primado la amplitud visual y funcional de los espacios, de ahí que cuando entres en tu vivienda, puedas disfrutar de la visión conjunta de la cocina abierta al salón y a la terraza, conformando un espacio único de amplitud excepcional.
Descripción:
La urbanización privada, en el interior de la manzana, compartida con Ática contará con amplias zonas ajardinadas, zona de paseo, gran plaza central y de estancia, zona de juegos infantiles, pista de pádel y, en una segunda fase, una gran piscina con zona independiente para niños y amplias zonas de solárium, en recinto propio con valla perimetral de seguridad.